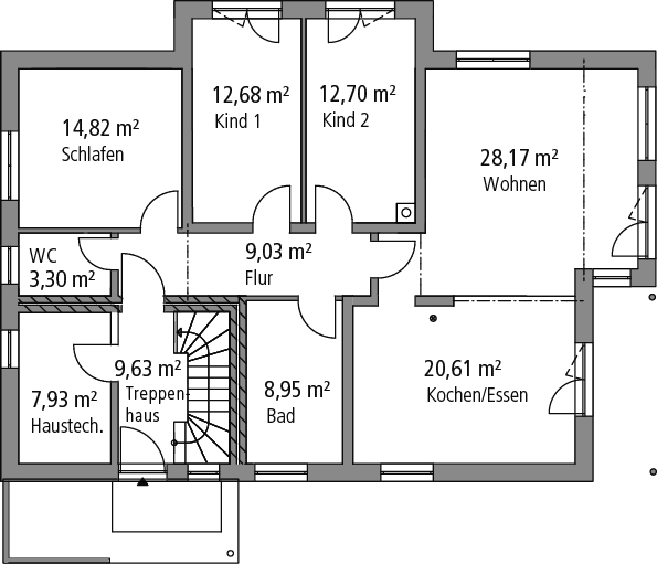
| Geschoss | Wohnfläche |
|
Erdgeschoss |
118,58 m² |
|
Dachgeschoss |
109.26 m² |
|
Gesamt |
227,84 m² |
|
Hausabmessung (m) |
15,62 x 11,47 |
|
U-Wert Außenwand |
0,23 W/m² K |
2-fach bauen - 3-fach profitieren
Mit dem massiven Zweifamilienhaus ZFH 244 von Ytong Bausatzhaus profitieren Sie 3-fach. Entscheiden Sie sich für:
- Ihr individuelles Traumhaus mit zwei gleichwertigen Wohneinheiten für gemeinsames Wohnen oder zur Vermietung
- 2 x 5.000 Euro KfW-Förderung*
- die Option zum Selbstbau
Durchdachter Grundriss, moderne Fassade und überzeugendes Einsparpotenzial
Von außen überzeugt das Zweifamilienhaus ZFH 244 durch seine freundliche Fassade. Die hölzernen Vorsprünge sehen nicht nur schick aus, sondern erweitern auf clevere Art und Weise das Platzangebot im Innern des Hauses.
Die bodentiefen Fenster auf beiden Ebenen sorgen für helle Wohnräume und die durchdachte Raumaufteilung erlaubt ein komfortables Wohnen in zwei gleichwertigen Wohneinheiten – Tag für Tag.
Wägen Sie zwischen dem Bau von zwei Einfamilienhäusern oder einem Zweifamilienhaus ab, so profitieren Sie bei letzterem von geringeren Bau- und Grundstückskosten.
* Die Gebäudehülle des Bausatzes wurde so konzipiert, dass das Haus – unter Berücksichtigung technischer Randbedinggungen unter Einsatz entsprechender Haustechnik – als KfW Effizienzhaus 55 realisiert werden kann. Gemäß KfW Kreditprogramm 153 (Stand 04-2018) wird bei diesem energetischen Standard ein Kredit von max. 100.000 Euro pro Wohneinheit gewährt mit einem Tilgungszuschuss von 5 % des Zusagebetrags.
